Woonoppervlakte
Circa 86 m²
Inhoud
Circa 293 m³
Bouwjaar
Gebouwd in 2008
Aantal kamers
3 kamers (2 slaapkamers)

Ebbingedwinger 17

9712 MA, Groningen (Groningen)

NIEUWE WOONPLANNEN?
Mooi gelegen, licht 3 kamer appartement (bouwjaar 2008) op de begane grond nabij het Ciboga terrein op een steenworp afstand van het winkelcentrum “de Beren”. De woning is gunstig gelegen ten opzichte van uitvalswegen, het UMCG, de Hanzehogeschool en de RUG en in de directe omgeving zijn alle dagelijkse voorzieningen aanwezig. De woning ligt op ca. 200 meter van het Noorderplantsoen en op loopafstand van het stadscentrum. De woning maakt onderdeel uit van het nieuwbouwcomplex “Trezoor” welke een actieve VvE heeft met een bijdrage van 136,67,- per maand.

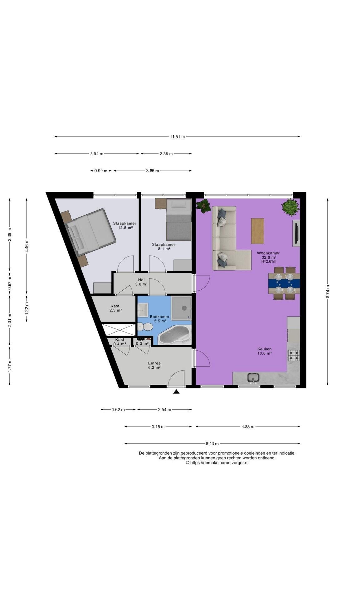
INDELING:
BEGANE GROND:
- Entree/hal (ca. 6m2), meterkast;
- Ruime woonkamer met open keuken (ca. 43m2) met inbouwapparatuur;
- Hal (ca. 4m2), slaapkamer (ca. 8m2);
- Badkamer met vaste wastafel/wasmeubel, toilet, bad en douche (ca. 6m2);
- Bergruimte/technische ruimte met aansluiting voor een wasmachine en wasdroger;
- Grote slaapkamer (ca. 13m2).

TUIN:
Gezamenlijke mooi aangelegde binnentuin met een heerlijke zonnige ligging.

PARKEREN:
Tegen betaling in de parkeergarages in de directe omgeving.

BERGING:
Bij de woning hoort tevens een berging (ca. 5m2) in de kelder van het complex, welke zowel per trap als per lift bereikbaar is;
Ook is er een gezamenlijke fietsenstalling.

VERDUURZAMING:
Label A+;
Volledig geïsoleerd;
4 zonnepanelen;
Aansluiting op stadsverwarming.

STERKE PUNTEN:
- Label A+;
- Binnenschilderwerk is net klaar (2025 nota aanwezig);
- Actieve VvE € 136,67 p.m;
- Heerlijk dichtbij het centrum en Noorderplantsoen;
- De niet-bewoningsclausule is van toepassing;
- 4 Zonnepanelen;
- Licht appartement met ruime woonkamer.

Notaris keuze is Trip advocaten en notarissen. Deze notaris zal de transportakte opmaken.

Benieuwd of dit appartement past in jouw nieuwe woonplannen? Reserveer een bezichtiging en ontdek het zelf! Wij nemen graag de tijd voor je.

Plattegronden

Overdracht

Vraagprijs
€ 350.000 k.k.
Status
Verkocht
Bijdrage VvE
€ 136,67 per maand

Bouw

Object type
Benedenwoning (appartement)
Soort bouw
Bestaande bouw
Bouwjaar
2008
Soort dak
Plat dak bedekt met bitumineuze dakbedekking

Oppervlakte en inhoud

Woonoppervlakte
86 m²
Inhoud
293 m³
Externe bergruimte
6 m²

Indeling

Aantal kamers
3 kamers (2 slaapkamers)
Aantal badkamers
1 badkamer
Badkamervoorzieningen
Douche, ligbad, toilet, en wastafel
Aantal woonlagen
1 woonlaag
Gelegen op
Begane grond
Voorzieningen
Balansventilatie, TV kabel, en zonnepanelen

Energie

Energielabel
A
Energielabel registratie
27-05-2025
Isolatie
Hr-glas en volledig geïsoleerd
Verwarming
Stadsverwarming
Warm water
Stadsverwarming

Buitenruimte

Ligging
Aan rustige weg en in woonwijk

Bergruimte

Schuur / berging
Inpandig
Voorzieningen
Elektra

Parkeergelegenheid

Soort parkeergelegenheid
Betaald parkeren en parkeergarage

VvE checklist

Inschrijving KvK
Ja
Jaarlijkse vergadering
Ja
Periodieke bijdrage
Ja (€ 136,67 per maand)
Reservefonds aanwezig
Ja
Onderhoudsplan
Ja
Opstalverzekering
Ja

Hypotheekgesprek? of Hypotheekvragen?

Maak een vrijblijvende afspraak met onze hypotheekadviseur

Afspraak hypotheekgesprek →

Gratis Waardecheck

Met onze gratis online waardecheck zie je direct de waarde van je woning


Naar waardecheck

Energieverbruik in Groningen

Energielabel deze woning

Energielabel A

Publicatie energielabel: 27-05-2025

Stroomverbruik per jaar

1790 kWh

(Gemiddelde appartement in Groningen)

Gasverbruik per jaar

870 m³

(Gemiddelde appartement in Groningen)

* Cijfers zijn afkomstig van het CBS en bedoeld als indicatie en kunnen verschillen voor deze woning

Indicatie hypotheeklasten

Eigen inleg:
Spaargeld / overwaarde

Rente:
Laagste 10-jaars rente

Laagste 10-jaars rente

2,75% - Centraal Beheer Groen... - NHG


3,05% - Centraal Beheer Groen... - 80%

Laagste 20-jaars rente

3,52% - Syntrus Achmea Groen B... - NHG


3,79% - Syntrus Achmea Groen B... - 80%

Laagste 30-jaars rente

3,64% - Syntrus Achmea Groen B... - NHG


3,88% - Syntrus Achmea Groen B... - 80%


Hypotheek:

Bruto maandlasten: € 0 p/m

Netto maandlasten: € 0 p/m

Hoe berekenen we dit?

Het rentepercentage is gebaseerd op de laagste 10-jaars vaste rente voor één hypotheekdeel. De vermelde rente (2.75% met NHG) is gecontroleerd op 03-10-2025. Deze berekening is gebaseerd op een annuïteitenhypotheek die volledig wordt afgelost, waarbij de maandlasten gedurende de gehele looptijd gelijk blijven. De werkelijke rente en netto maandlasten kunnen variëren, afhankelijk van uw persoonlijke situatie en de hypotheekverstrekker. Raadpleeg een financieel adviseur voor een nauwkeurige berekening en advies. Aan deze berekening kunnen geen rechten worden ontleend; het dient enkel als indicatie.

Documentatie

Kadastrale kaart

Leefomgeving

Mjop 2024-2025

Model reglement 2006

Deel-2-vragenlijst-over-het-appartement-inclusief-vve-checklist

Bezoek onze website

Zonnegrenzen bekijken

Op de kaart

Inwoners in Groningen

Cijfers voor postcodegebied 9712

Totaal aantal inwoners
10280 inwoners
Mannen
51%
Vrouwen
49%

Inwoners in Groningen

Cijfers voor postcodegebied 9712

tot 15 jaar
4%
15 tot 25 jaar
42%
25 tot 35 jaar
33%
45 tot 65 jaar
13%
65 en ouder
8%

Huishoudens in Groningen

Cijfers voor postcodegebied 9712

Eenpersoons zonder kinderen
80%
Meerpersoons zonder kinderen
15%
Huishoudens zonder kinderen
95%

Huishoudens in Groningen

Cijfers voor postcodegebied 9712

Huishoudens met één kind
1%
Huishoudens met meerdere kinderen
3%
Huishoudens met kinderen
4%

Woningen in Groningen

Cijfers voor postcodegebied 9712

Woningen voor 1945
63%
Woningen tussen 1945 en 1965
9%
Woningen tussen 1965 en 1975
1%
Woningen tussen 1975 en 1985
6%
Woningen tussen 1985 en 1995
4%

Woningen in Groningen

Cijfers voor postcodegebied 9712

Woningen tussen 1995 en 2005
3%
Woningen tussen 2005 en 2015
9%
Woningen na 2015
5%
Huurwoningen
80%
Koopwoningen
20%

Overige in Groningen

Cijfers voor postcodegebied 9712

Gemiddelde WOZ waarde
€ 206.000,-
Personen onder de 65 met uitkering
7%

Overige in Groningen

Cijfers voor postcodegebied 9712

Adressen per km²
6503
Stedelijkheid (schaal 1 op 5)
100%
Postcode kaart 9712 Gemeente kaart groningen

Korte feiten over Groningen

Groningen is de hoofdstad van de Nederlandse provincie Groningen, en de grootste kern in de gelijknamige gemeente. De plaats wordt in de provincies Groningen en Drenthe wel aangeduid als Stad. In 2021 telde de stad Groningen 202.900 inwoners. Het is de grootste stad van noordelijk Nederland. Groningen maakt deel uit van het samenwerkingsverband Regio Groningen-Assen.

Indien u vragen heeft of u wilt een bezichtiging inplannen, dan kunt u gebruik maken van het formulier hiernaast. Er zal daarna op korte termijn contact met u worden opgenomen.

Verlengde Hereweg 33

9721 AD, Groningen

050 - 527 7880 hallo@planmakelaars.nl www.planmakelaars.nl

Hallo, wij zijn Plan Makelaars Groningen

Het is een plek waar je jezelf kunt zijn. Het is geluk binnen vier muren. Het is de plek waar je talloze herinneringen hebt gemaakt, of nog gaat maken. Dat wensen we iedereen toe, vooral onze klanten, omdat we het een eer vinden om aan hun zijde te mogen staan. Aan jouw zijde. Want je hebt de beslissing genomen: er komt binnenkort een verkoopbord op je raam of je bent op zoek naar een nieuw thuis.

Maar dan begint het pas echt. Wat zijn je wensen en eisen? Met onze persoonlijke aanpak helpen we je om hierachter te komen. Zo kunnen we gericht te werk gaan en het beste resultaat voor jou behalen. De tijd speelt geen rol; we vinden altijd een manier om het optimale eindresultaat te realiseren: de beste deal, een soepel proces en continu overzicht op wat er gebeurt. Dat is ons doel.

Hallo, wij zijn Plan Makelaars Groningen
Reviews Plan Makelaars

Ebbingedwinger 17, Groningen

€ 350.000 k.k. - Verkocht

Helaas, deze woning is verkocht!

Net te laat, deze woning is al verkocht. Laat een zoekopdracht bij ons achter zodat wij u direct kunnen helpen wanneer er nieuw aanbod beschikbaar komt.